SketchUp Layout, będący częścią SketchUp Pro, pozwala na łatwe przekształcanie modeli 3D w szczegółowe rysunki 2D. Dzięki Layout można tworzyć profesjonalną dokumentację techniczną, rzuty, widoki, przekroje oraz rysunki wykonawcze.
Omówmy 5 wskazówek, które pomogą Ci zoptymalizować pracę i poprawić jakość dokumentacji w SketchUp Layout.

1. Przyspiesz Pracę w SketchUp Layout
Doświadczenie wolnego działania SketchUp Layout może być frustrujące, ale istnieje kilka sposobów na optymalizację i przyspieszenie pracy. Oto kilka praktycznych wskazówek:
- Uprość Model: Ciężkie modele SketchUp prowadzą do wolnego działania SketchUp Layout. Zmniejsz geometrie i usuń nieużywane komponenty oraz materiały.

- Tekstury o Niższej Rozdzielczości: Jeśli nie tworzysz wizualizacji wysokiej jakości, używaj tekstur o niższej rozdzielczości. Zalecam tekstury o rozdzielczości około 800 – 1000 pikseli.

- Wyłącz Cienie i Profile: Te funkcje mogą spowalniać działanie. Wyłącz je dla szybszej pracy. Opcję Profilów znajdziesz w oknie Styl, a opcję Cieni w oknie Cienie w SketchUp.

- Używaj Renderowania Rasterowego w SketchUp Layout: Chociaż renderowanie rasterowe obniża jakość rysunków, znacząco przyspiesza działanie SketchUp Layout. Zaraz przed eksportem możesz przełączyć się na renderowanie hybrydowe dla lepszej jakości.

- Eksperymentalny Silnik Graficzny: Jeśli używasz SketchUp 2024, wypróbuj Eksperymentalny Silnik Graficzny w preferencjach Layout. Jest on nadal w fazie rozwoju, więc jeśli napotkasz problemy, po prostu odznacz tę opcję.

2. Wysokiej Jakości Model w SketchUpie
= Precyzyjna Dokumentacja w SketchUp Layout
Dokumentacja techniczna w SketchUp Layout opiera się na modelu 3D stworzonym w SketchUp. Jeśli Twój model 3D jest dobrze zorganizowany za pomocą tagów, grup i komponentów, i masz nad nim pełną kontrolę, jesteś na dobrej drodze do stworzenia precyzyjnej i klarownej dokumentacji 2D.
Do projektów wnętrz preferuję używanie więcej niż 10 tagów, takich jak Ściany, Podłoga, Oświetlenie, Akcesoria oraz różne rodzaje mebli. Zależy mi na dokładności, dlatego tworzę oddzielne tagi dla szafek i frontów szafek. To podejście pomaga mi tworzyć szczegółową dokumentację dla mebli na zamówienie.
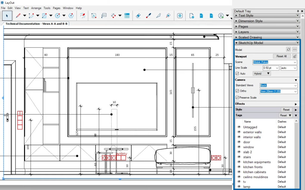
Pamiętaj, że tagi w SketchUp Layout są kopiowane do Layouta. Masz pełną kontrolę nad tym, które tagi są widoczne lub ukryte na każdym rysunku. Wystarczy wybrać okno SketchUp Model i użyć opcji po prawej stronie, aby przełączać widoczność konkretnych tagów.

3. Warstwy w SketchUp Layout
Tagi w SketchUp są równie ważne jak Warstwy w SketchUp Layout. Problemy z ukrytymi wymiarami lub podpisami często wynikają z niewłaściwego rozmieszczenia warstw.
Po prawej stronie SketchUp Layout znajdziesz panel Warstwy. Stworzyłam kilka warstw dla różnych elementów, takich jak Model, Wymiary, Podpisy i Dodatkowe Linie lub Symbole. Każdy element rysunku przypisuję do odpowiedniej warstwy.

Hierarchia warstw w SketchUp Layout jest niezwykle ważna. Jeśli warstwa Modelu jest na górze, może zasłaniać wymiary i podpisy, czyniąc je niewidocznymi. Aby tego uniknąć, umieszczam warstwę Modelu na dole i układam warstwy z podpisami, symbolami, wymiarami i innymi elementami powyżej.

4. Nowa Scena = Nowy Przekrój
Aby stworzyć dokładne widoki 2D w SketchUp, ważne jest efektywne używanie płaszczyzn przekroju. Jednak praca z płaszczyznami przekroju może czasem prowadzić do problemów z widokami. Oto złota zasada: Jedna płaszczyzna przekroju na jeden widok.
- Unikaj Przesuwania Aktywnych Płaszczyzn Przekroju: Po utworzeniu płaszczyzny przekroju unikaj jej przesuwania. Przesunięcie aktywnej płaszczyzny przekroju może powodować problemy z innymi scenami.
- Zarządzanie Stylami i Przekrojami: Kolejny częsty problem z płaszczyznami przekroju dotyczy stylów. Oto jak to działa:
– Jeśli Twój widok używa stylu z opcją “Przekroje” zaznaczoną, przekrój będzie aktywny.
– Jeśli przełączysz się na styl, w którym opcja “Przekroje” jest odznaczona, przekrój nie będzie aktywny, co może uszkodzić Twój widok.

Aby tego uniknąć, zawsze dokładnie kontroluj swoje style. Dla widoków utworzonych z płaszczyzną przekroju, używaj stylu, w którym opcja przekrojów jest zaznaczona i aktywna
5. Rysunki 2D i Symbole
Dla większej dokładności, używaj rysunków 2D w SketchUp. Twórz oznaczenia 2D dla drzwi, oświetlenia i mebli. Aby wszystko było połączone, grupuj model 3D z oznaczeniem 2D. Przypisz te rysunki 2D do tagu, co pozwoli Ci łatwo je włączać lub wyłączać w razie potrzeby.
W SketchUp Layout używam symboli dla oświetlenia i instalacji. Wszystkie symbole, wymiary i czcionki są przygotowane w dwóch skalach: 1:20 i 1:50. Trzymam te elementy pod ręką obok rysunku i używam ich w razie potrzeby.

Dodatkowo, z ikoną stylu, możesz kopiować właściwości takie jak style linii i wymiary, w tym rozmiar i typ czcionki, aby zapewnić spójność w całych rysunkach. To sprawia, że Twoje rysunki są bardziej przejrzyste i atrakcyjne wizualnie.

Korzystaj z tych wskazówek, aby uniknąć typowych błędów i uzyskać świetne widoki 2D za każdym razem. Optymalizując pracę w SketchUp Layout i wdrażając najlepsze praktyki, zwiększysz swoją produktywność i jakość dokumentacji.
Podsumowanie
SketchUp Layout jest świetnym programem do tworzenia dokumentacji. Używając SketchUp i SketchUp Layout możemy stworzyć pełny projekt wnętrz. Od koncepcji do rysunków wykonawczych.
Jeśli chcesz w pełni opanować program SketchUp Layout, to zapraszam Cię na mój kurs Tworzenia Dokumentacji Technicznej w SketchUp Layout